Nueva Andalucía

Te koop Middle Floor Apartment Costa Del Sol Nueva Andalucía € 575.000,-

Ref.no: RSOR5169481
Price: € 575.000,-

1-7980e48d732b6fc85c14b43b94d2aa54.jpg

Te koop Middle Floor Apartment Costa Del Sol Nueva Andalucía € 575.000,-

Bedrooms2
Salles de bains2
Superficie du terrain101m²
Poolyes
Gardenyes
Parkingno
Built year2012
Omgeving: Urbanisatie
Orientatie: Zuidoost
Staat: goed
Zwembad: gemeenschappelijk, overdekt, verwarmd, kinderzwembad
Klimaatregeling: airconditioning
Uitzicht: Zee, Stedelijk
Équipements : Terrasse couverte, Ascenseur, Placards aménagés, Terrasse privée, Salle de sport, Sauna, Paddle-tennis, Local de rangement, Jacuzzi, Barbecue, Double vitrage, Réception ouverte 24h/24, Restaurant sur place
Meubels: volledig gemeubileerd
Keuken: volledig ingericht
Tuin: Gemeenschappelijk
Beveiliging: Gated Complex, 24-uurs beveiliging
Parkeren: ondergronds
Categorie: Vakantiehuizen, Investering, Wederverkoop
Ref.no: RSOR5169481
Price: € 575.000,-

Plus d'information ›››
Te koop Middle Floor Apartment Costa Del Sol Nueva Andalucía € 575.000,-

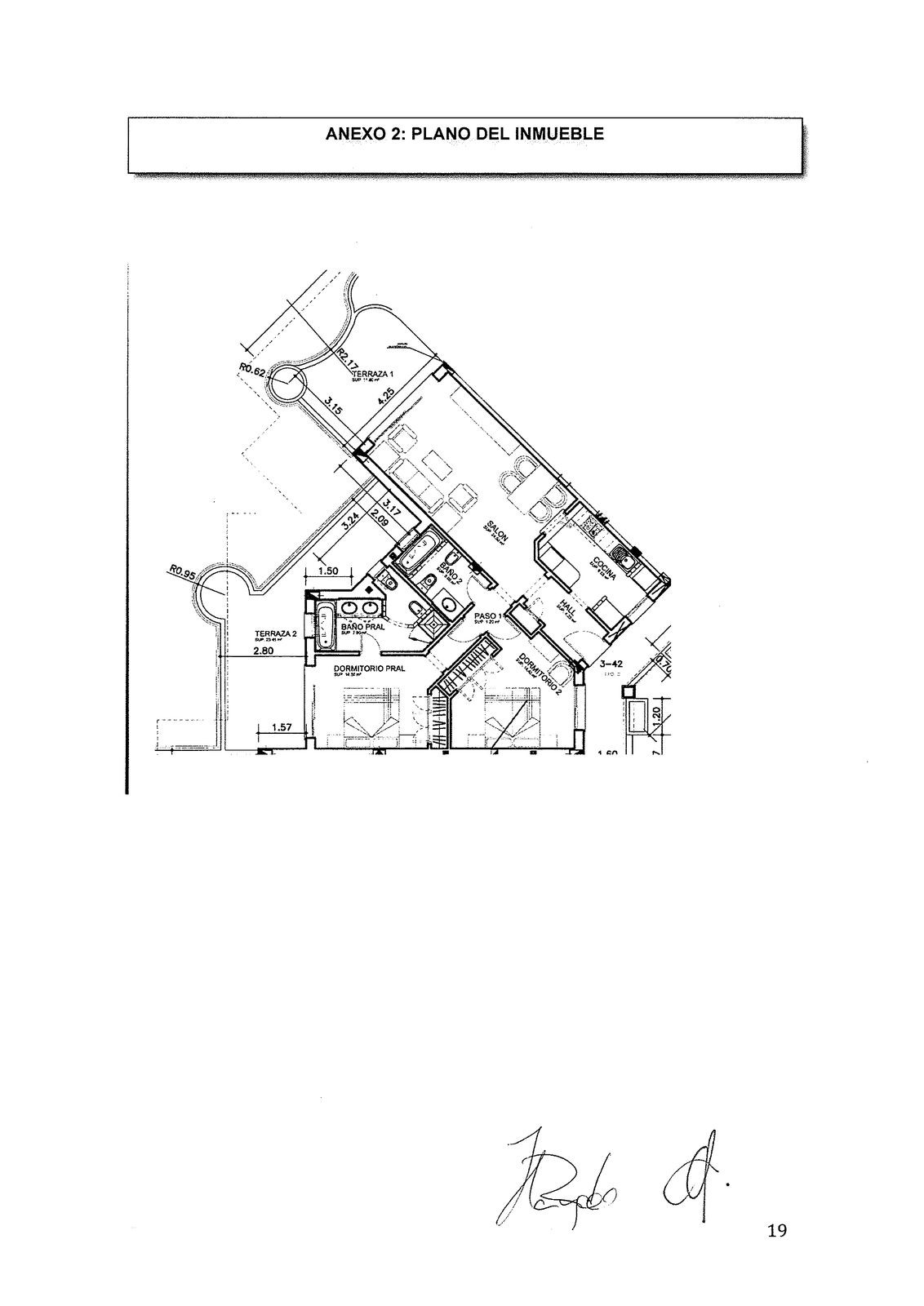
Élégant appartement de 2 chambres avec vue sur la mer à l'Aloha Hill Club

Nichée au sein du prestigieux Aloha Hill Club, cette élégante maison de 2 chambres et 2 salles de bains offre une surface habitable de 101 m² et 20 m² de terrasses, conçues pour optimiser la luminosité et offrir une vue imprenable sur la mer. Son orientation sud-est garantit une luminosité matinale exceptionnelle et une ambiance chaleureuse et accueillante tout au long de la journée.

Ce qui distingue cette propriété, c'est son emplacement au sein d'un complexe résidentiel de style resort qui allie luxe, confort et commodités. Aloha Hill Club propose :
• Quatre piscines extérieures, dont une pataugeoire et une piscine semi-olympique chauffée en hiver
• Un centre de remise en forme et un spa d'une superficie d'environ 500 m²
• Un bar-restaurant avec piscine et four à pizza au feu de bois
• Des jardins tropicaux luxuriants qui entourent les allées et les espaces communs
• Résidence sécurisée avec toutes les commodités que l'on attend d'un complexe haut de gamme
• Appartements entièrement meublés dans un style moderne avec des détails personnalisés

En termes d'accès et de connectivité :
• La résidence est située dans la Vallée du Golf, ce qui lui confère la proximité des meilleurs équipements de Marbella.
• Il se trouve à seulement 5 minutes en voiture de Puerto Banús et à 10 minutes du centre de Marbella.
• L'emplacement est idéal aussi bien pour la vie quotidienne que pour les vacances.

Alternatives

1-7980e48d732b6fc85c14b43b94d2aa54.jpg

Te koop Gelijkvloers appartement Costa Del Sol Estepona € 675.000,-

Price € 675.000,-
Plus d'information
1-7980e48d732b6fc85c14b43b94d2aa54.jpg

Te koop Middle Floor Apartment Costa Del Sol Los Almendros € 485.000,-

Price € 485.000,-
Plus d'information
1-7980e48d732b6fc85c14b43b94d2aa54.jpg

Te koop Bovenwoning Costa Del Sol Higueron € 550.000,-

Price € 550.000,-
Plus d'information
1-7980e48d732b6fc85c14b43b94d2aa54.jpg

Te koop Penthouse Duplex Costa Del Sol Benahavís € 480.000,-

Price € 480.000,-
Plus d'information
Disclaimer | Links
Casadelmar %lng_cookie_notice% %lng_close%
x