Manilva

Te koop Herenhuis Costa Del Sol Manilva € 395.000,-

Ref.no: RSOR5199940
Price: € 395.000,-

1-7980e48d732b6fc85c14b43b94d2aa54.jpg

Te koop Herenhuis Costa Del Sol Manilva € 395.000,-

Bedrooms3
Salles de bains2
Superficie du terrain146m²
Poolyes
Gardenyes
Parkingno
Built year1986
Omgeving: Urbanisatie
Orientatie: Zuidoost
Staat: uitstekend, recent gerenoveerd
Zwembad: gemeenschappelijk
Uitzicht: Zee, Stedelijk
Caractéristiques : Terrasse couverte, Armoires encastrées, Proche des transports, Terrasse privée, Wi-Fi, Sol en marbre, Double vitrage
Keuken: volledig ingericht
Tuin: privé, eenvoudig onderhoud
Nutsbedrijven: elektriciteit
Categorie: Vakantiehuizen, Wederverkoop
Ref.no: RSOR5199940
Price: € 395.000,-

Plus d'information ›››
Te koop Herenhuis Costa Del Sol Manilva € 395.000,-

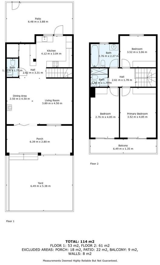
Cette maison de ville magnifiquement rénovée dans l'urbanisation très appréciée d'Hacienda Guadalupe est l'une des meilleures propriétés à ce prix que nous ayons vues ces derniers temps.
Elle comprend 3 chambres, 2 salles de bain et demie, sur une surface habitable d'environ 146 m² et un espace extérieur supplémentaire d'environ 50 à 60 m². Elle offre également une vue sur la mer !
La propriété a été entièrement rénovée il y a environ 2 ans et demi, et avec un propriétaire qui est un électricien très respecté dans la région, vous avez des panneaux solaires, un onduleur et toutes les finitions ont été réalisées au plus haut niveau.
C'est aussi une maison pratique, à quelques minutes en voiture des écoles locales, à pied de la plage, de jolis terrains communs pour que les enfants puissent faire du vélo et jouer.
L'un de nos restaurants argentins préférés est à votre porte, même pour un « rendez-vous galant ».
Avec un prix très raisonnable, cette propriété est idéale pour une maison de vacances, une maison familiale pour un déménagement ou un investissement locatif, car les acheteurs affluent vers l'ouest, à la recherche d'un meilleur rapport qualité-prix, ce qui fait grimper les prix. Manilva est l'une des municipalités à la croissance la plus rapide de la côte.
On nous a fait confiance pour vendre cette belle maison, et à mon avis, elle pourrait se vendre plus vite que vous ne pouvez dire « Hacienda Guadalupe ».

Alternatives

1-7980e48d732b6fc85c14b43b94d2aa54.jpg

Te koop Herenhuis Costa Del Sol Manilva € 390.000,-

Price € 390.000,-
Plus d'information
1-7980e48d732b6fc85c14b43b94d2aa54.jpg

Te koop Herenhuis Costa Del Sol Estepona € 377.000,-

Price € 377.000,-
Plus d'information
1-7980e48d732b6fc85c14b43b94d2aa54.jpg

Te koop Herenhuis Costa Del Sol Mijas € 399.000,-

Price € 399.000,-
Plus d'information
1-7980e48d732b6fc85c14b43b94d2aa54.jpg

Te koop Herenhuis Costa Del Sol Manilva € 420.000,-

Price € 420.000,-
Plus d'information
Disclaimer | Links
Casadelmar %lng_cookie_notice% %lng_close%
x