Marbella

Te koop Middle Floor Apartment Costa Del Sol Marbella € 530.000,-

Ref.no: RSOR4979722
Price: € 530.000,-

1-7980e48d732b6fc85c14b43b94d2aa54.jpg

Te koop Middle Floor Apartment Costa Del Sol Marbella € 530.000,-

Bedrooms3
Salles de bains2
Superficie du terrain145m²
Poolno
Gardenno
Parkingno
Built year1972
Setting: Town, Close To Shops, Close To Sea, Close To Town, Close To Schools
Orientation: North, West
Condition: Renovation Required
Climate Control: Air Conditioning
Views: Urban, Street
Features: Private Terrace, Storage Room
Furniture: Optional
Kitchen: Not Fitted
Category: Resale
Ref.no: RSOR4979722
Price: € 530.000,-

Plus d'information ›››
Te koop Middle Floor Apartment Costa Del Sol Marbella € 530.000,-

Unique opportunity in the heart of Marbella!

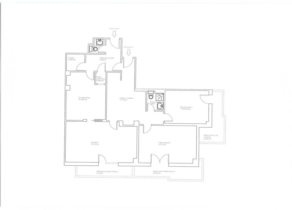
Two 2-bedroom apartments for sale, currently combined into a spacious and bright 4-bedroom home in the heart of Marbella. Boasting an unbeatable location, just a 2-minute walk from the beach and the Paseo Marítimo, and surrounded by all amenities: shops, restaurants, health centers, schools, and public transportation.
The property has 145 m² of built area and is currently distributed into 4 bedrooms, 2 bathrooms, a spacious entrance hall, a separate kitchen, living rooms, and a terrace.
A home with great potential, ideal both as a family home and as an investment, either to be rented out or divided into two separate units.
It requires a complete renovation, allowing the buyer to adapt the space to their needs or maximize its profitability.

Alternatives

BOHACP1429_4811_V1_11C6.jpg

Te koop Appartement Costa Del Sol Fuengirola € 499.000,-

Price € 499.000,-
Plus d'information
1-7980e48d732b6fc85c14b43b94d2aa54.jpg

Te koop Gelijkvloers appartement Costa Del Sol Elviria € 435.000,-

Price € 435.000,-
Plus d'information
1-7980e48d732b6fc85c14b43b94d2aa54.jpg

Te koop Middle Floor Apartment Costa Del Sol Cabopino € 495.000,-

Price € 495.000,-
Plus d'information
1-7980e48d732b6fc85c14b43b94d2aa54.jpg

Te koop Gelijkvloers appartement Costa Del Sol Benalmadena € 489.000,-

Price € 489.000,-
Plus d'information
Disclaimer | Links
Casadelmar %lng_cookie_notice% %lng_close%
x